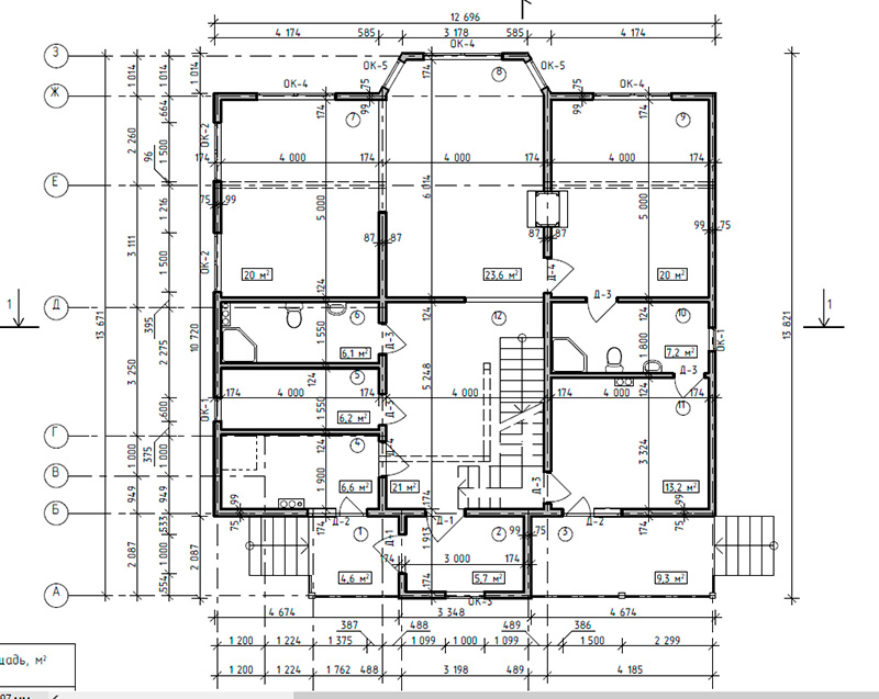
Фундамент — мелкозаглубленный ленточный на буронабивных сваях
Несущие стены — SIP панель (174мм)
Покрытие — битумная черепица
Наружная отделка — фиброцементные панели.
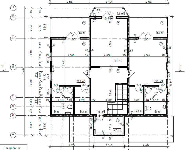
Фундамент — мелкозаглубленный ленточный на буронабивных сваях
Несущие стены — SIP панель (174мм)
Покрытие — битумная черепица
Наружная отделка — фиброцементные панели.





