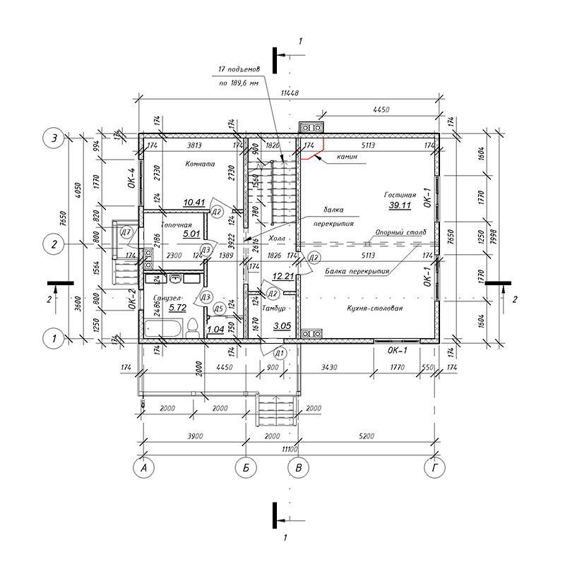
Фундамент — ж/б плита
Несущие стены — SIP панель (174мм)
Покрытие — битумная черепица
Наружная отделка — штукатурка, облицовочная плитка, природный камень
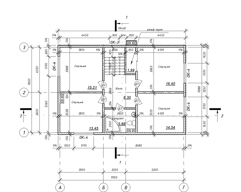
Фундамент — ж/б плита
Несущие стены — SIP панель (174мм)
Покрытие — битумная черепица
Наружная отделка — штукатурка, облицовочная плитка, природный камень





