+79025743611

    29-16-76

Сахалинская область

г. Южно-Сахалинск,ул.Холмская,д.7

ПРОИЗВОДСТВО И ПРОДАЖА ДОМОКОМПЛЕКТОВ

114,5

Площадь кв.м.

2

Этажи

4

Комнаты

2

Ванные

Гараж

Проект современного дома, это предложение для тех, кто нуждается в пространство, разнообразие форм и дизайне.

Фасад в данном проекте можно легко поменять на любой декоративный материал (штукатурка, кирпич, фасадная плитка и т.п.). Также, по Вашему пожеланию, мы легко можем внести изменения в этот проект.
Описание
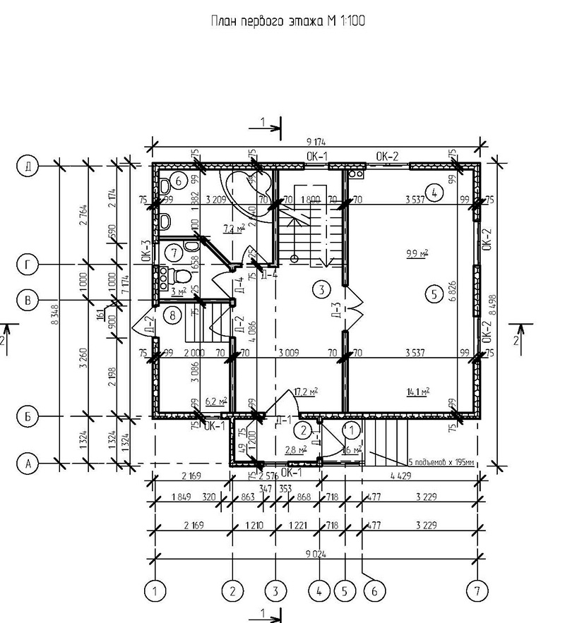
Первый этаж
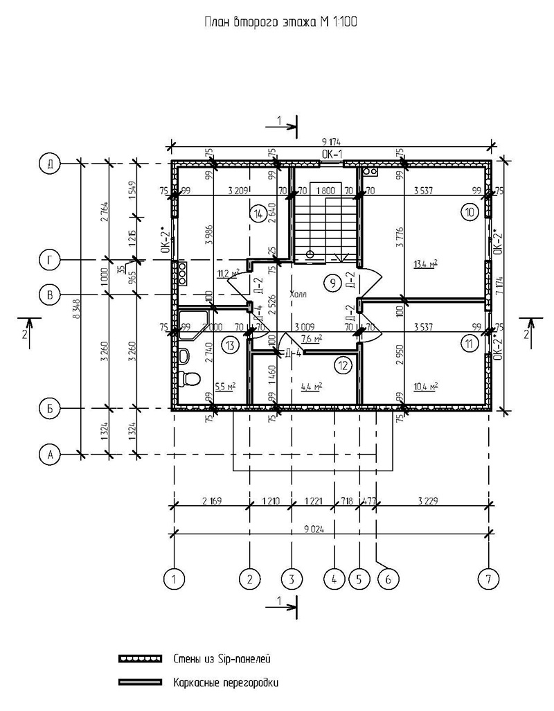
Второй этаж
Фасады

Фундамент — ленточный

Несущие стены — SIP панель (174мм)

Покрытие — мягкая черепица

Наружная отделка —металический сайдинг

Описание
Первый этаж
Второй этаж
Фасады
  1. Крыльцо 1,6м2
  2. Тамбур 2,8м2
  3. Холл 17,2м2
  4. Кухня 9,9м2
  5. Гостиная 14,1м2
  6. Ванная 7,2м2
  7. С/у 3м2
  8. Котельная 6,2м2
Описание
Первый этаж
Второй этаж
Фасады
  1. Холл 7,6м2
  2. Спальня 13,4м2
  3. Спальня 10,4м2
  4. Гардероб 4,4м2
  5. С/у 5,5м2
  6. Спальня 11,2м2
Описание
Первый этаж
Второй этаж
Фасады