+79025743611

    29-16-76

Сахалинская область

г. Южно-Сахалинск,ул.Холмская,д.7

ПРОИЗВОДСТВО И ПРОДАЖА ДОМОКОМПЛЕКТОВ

138,276

Площадь кв.м.

2

Этажи

4

Комнаты

2

Ванные

Навес

Гараж

Дом соединяющий в себе классику с простором помещений. 

Фасад в данном проекте можно легко поменять на любой декоративный материал (штукатурка, кирпич, фасадная плитка и т.п.). Также, по Вашему пожеланию, мы легко можем внести изменения в этот проект.
Описание
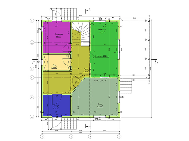
Первый этаж
Второй этаж
Фасады

Фундамент — монолитный ж/б

Несущие стены — SIP панель (174мм)

Покрытие — металочерепица

Наружная отделка — блокхаус

Описание
Первый этаж
Второй этаж
Фасады
  1. Бойлерная 8,997м2
  2. С/у 4,504м2
  3. Гостиная 16,030м2
  4. Кухня 17,292м2
  5. Тамбур 5,996м2
  6. Холл 17,959м2
Описание
Первый этаж
Второй этаж
Фасады
  1. С/у 12,004м2
  2. Спальня 15,763м2
  3. Спальня 14,589м2
  4. Спальня 14,589м2
  5. Холл 10,552м2
Описание
Первый этаж
Второй этаж
Фасады